Wohnhaussanierung mit Passivhausstandards

Lüsebrink-Wirth

Das 1928 gebaute Wohn- und Werkstatthaus wurde im Erdgeschoss als Lager bzw. Werkstatt genutzt. Im Dachgeschoss war eine Wohnung mit ca. 85 m2 Wohnfläche eingerichtet. Nach dem Umbau wird die Wohnfläche ca. 82 m2 betragen. Das Erdgeschoss wird weiterhin als Lager bzw. Werkstatt genutzt.

Ziele des Umbaus:
Die Wohnungsaufteilung soll so erfolgen, dass in südlicher Richtung der Wohnraum kombiniert mit Küche und Esszimmer, liegt. Die Schlafräume liegen in Richtung Norden, mit den Fenstern in Richtung Westen. Eingang, Gäste-WC, Bad und Ankleide in östlicher Richtung.
Der wärmetechnische Stand der Gebäudehülle soll mit maximaler Dämmstärke ausgeführt werden. Dadurch werden die Transmissionsverluste so gering wie möglich gehalten. Auf eine Heizungsanlage soll verzichtet - und das Warmwasser elektrisch erstellt werden. Alternativ wird in Erwägung gezogen, im Untergeschoss einen Pelletofen (ohne Silo) aufzustellen, mit welchem ein entsprechender Warmwasserspeicher beheizt wird.

Eine Lüftungsanlage mit Wärmerückgewinnung > 90 %, wird im Winter die Lüftungswärmeverluste minimieren und im Sommer wie Winter für ständige Frischluft sorgen.

  • Wärmerück-
    gewinnung

    > 90 %

  • Wohnfläche

    82 m2

Ergebnisse der Wärmebedarfsberechnung

Aufgrund der hohen Dämmmaßnahmen wird der spez. Heizwärmebedarf so gering, dass hier ein gesamter Heizenergiebedarf von ca. 3400 kwh/Jahr entsteht. Dies entspricht einem Ölverbrauch von ca. 310 Liter. Unter Berücksichtigung der Wärmerückgewinnung mit der Lüftungsanlage werden hier nochmals ca. 150 l Öl/Jahr eingespart.

Die Beheizung der 82 m2 großen Wohnung kann mit ca. 160 l Öl/Jahr erfolgen.

Würde bei der Auslegung des Gebäudes nur der EnEV-Standard (2007) zugrundegelegt, läge der Verbrauch bei ca. 810 l Öl / Jahr.

Ersparniss: ca. 390 Euro/Jahr für Ölverbrauch (Preisstand Mitte 2009)
                     ca. 10.000 Euro für Heizungsanlage&nbsp

Da die größten Verluste durch die freie Fensterlüftung (Frischluft für den Nutzer) eingefahren werden, macht der Einbau einer Lüftungsanlage mit Wärmerückgewinnung Sinn.


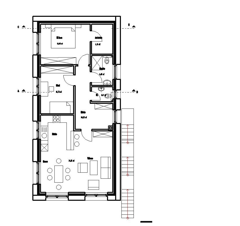
Grundriss und Planungsdetail

Außen- und Innenwände
Das vorhandene Außenmauerwerk besteht aus 11,5 cm starken Ziegelsteinen. Auf einer Länge von ca. 14,50 m sind in diesen Wänden vier Aussteifungspfeiler 40x40 cm angeordnet.

Nach der Sanierung soll die Außenfassade ohne Pfeiler eine ebene Fläche ergeben. Aus diesem Grund werden die Pfeilervorlagen abgestemmt und innenseitig eine 11,5 cm starke Kalksandsteinwand vorgemauert, welche (zur termischen Trennung auf der Betondeckenplatte) auf eine Dämmbrücke aufgesetzt wird.

Oberhalb der Fenster wird dann über die insgesamt 24 cm starke zweischalige Wand ein Betonrähm ausgeführt.  Die Rähme auf dem Giebelmauerwerk werden so tief angeordnet, dass die unter den Sparren geplante Untersparrendämmung bis nach außen durchlaufen kann (Vermeidung von Wärmebrücken). Die Innenwände werden ebenfalls auf einer Dämmbrücke aufgesetzt und aus Kalksandstein gemauert. Als Außenhaut erhält das Gebäude ein Wärmedämmverbundsystem mit 40 cm Dämmungsstärke.
Der Innenputz wird als Lehmputz ausgeführt.

Dach
Das alte Satteldach wird einschl. Holzkonstruktion abgerissen und durch ein Pultdach ersetzt. Die Sparren (10/26 cm) werden nur auf einer First- und Fußpfette aufliegen. Die Eindeckung erfolgt mit einem anthrazitfarbenem Wellblech. Zwischen den Sparren wird eine Mineralwolldämmung in Sparrenstärke eingebaut. Unter den Sparren wird eine PUR-Dämmung eingebaut, 20 cm stark, die durch eine Alukaschierung gleichzeitig die Dampfbremse ausbildet.
Alle Räume, außer der Flur, werden bis unter das Dach offen bleiben.

Fußboden
Unter dem Estrich werden 2 Dämmlagen, jeweils 10 cm stark, mit einer Wärmeleitfähikeit von 0,035 W/m2K verlegt

Fenster
Die Fenster werden in der Dämmungsebene montiert, dadurch wird der Isothermenverlauf gleichmässiger.
Es werden Holz-Alu-Fenster eingebaut, Besonderheit: von außen sind nur die Blendrahmen zu sehen. Die Glasscheibe ist auf dem Holzflügel aufgeklebt. Das Fenstersystem nennt sich "Edition 90 Glassline" von der Firma Gaulhofer.
https://www.gaulhofer.com/home/

Lüftung
Die Lüftungsanlage wie im Eingang neben der Eingangstür installiert und nimmt eine Fläche von ca. 40x40 cm ein.
Die Lüftungsleitungen werden in der abgehängten Decke im Flur verlegt. Oberhalb der Türen werden dann Weitwurfauslässe eingebaut, welche die Zuluft in die Räume verteilen. Im WC, Bad und Küche wird die verbrauchte Luft abgesaugt, welche dann unter den Innentüren nachströmmt.


      Wärmebrücken

      Gem. der EnEV können die Wärmebrücken pauschal, optimiert oder detailiert bei der Berechnung des Gebäudes berücksichtigt werden:

      • pauschal: Erhöhung aller U-Werte um 0,10 W/m2K, d. h. bei diesem Gebäude, (Hüllfäche: 392 m2) würde der Energieverlust durch die Wärmeleitung der Bauteile um 2587 kwh / Jahr höher angenommen als tatsächlich vorhanden.
      • optimiert: Erhöhung aller U-Werte um 0,05 W/m2K, Energieverlust bei diesem Gebäude um 1293 kwh / Jahr höher. Hierbei muß die Ausführung nach Planungsbeispielen der DIN 4108 Beiblatt 2 realisiert werden (bei Bestandsgebäuden nicht einzuhalten).
      • detailiert: Die Verluste durch die Wärmebrücken werden mit einer Software zur Wärmebrückenberechnung genau ermittelt. Bei diesem Gebäude ergab das einen Abschlag auf die U-Werte von 0,01 W/m2K.

      Die pauschale und die optimierte Berücksichtigung haben zur Folge, dass die Dämmungsstärken erhöht werden müssen, um die Forderungen der EnEV einzuhalten.

      Die Wärmebrücken werden, je besser der Dämmstandard, kritischer für Tauwasser- und somit auch Schimmelpilzbildung.

      Bei der energetischen Sanierung von Gebäuden sowie auch beim Neubau, sollte eine detaillierte Planung aller Problempunkte und die Koordination der Ausführung zwischen den Gewerken von einem Architekten erbracht werden. Dieser kennt die Problemstellen und kann die korrekte Ausführung überwachen.

      Wer hier spart, saniert in wenigen Jahren erneut und wenn es nur die schnellere Algenbildung, im Bereich der Wärmebrücken, auf dem Außenputz ist.
      Negative Beispiele sind allerorts an der Tagesordnung.

      Schnelle Fertigstellung

      Mit Liebe umgesetzt

      Glückliche Kunden

      Sichere Zahlung

      © 2020 Hochbau Frank Böttger. All Rights Reserved